arhitektura
arhitektura
MAO3-1320x660.jpg
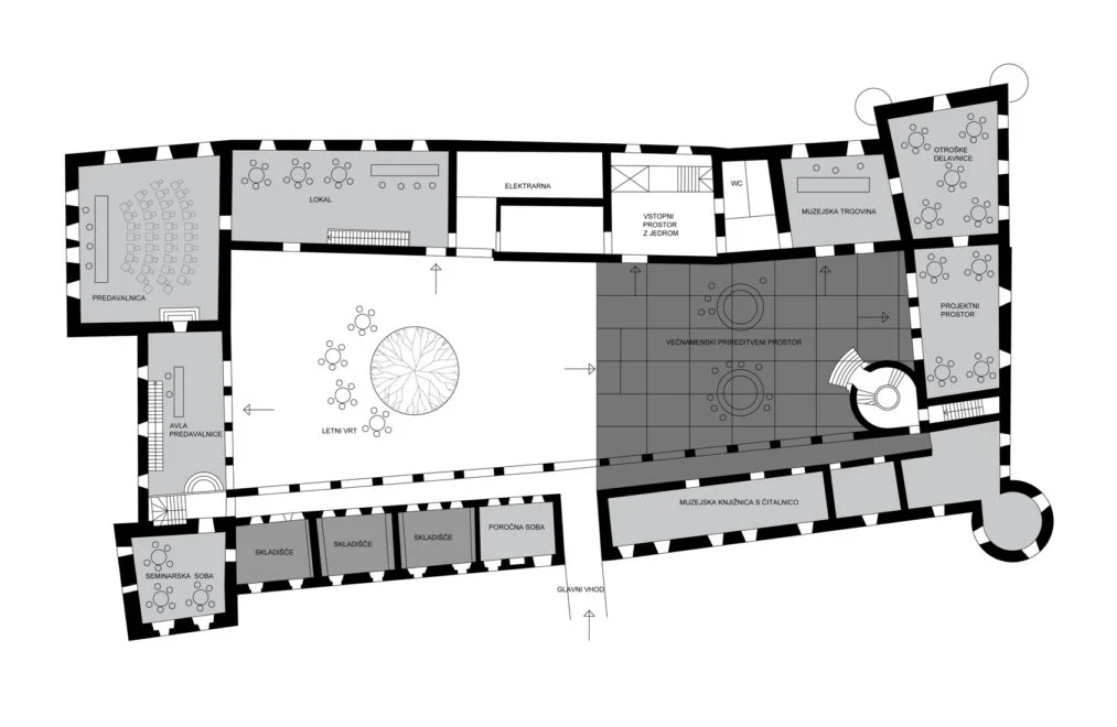
Museum of Architecture and Design
Museum of Architecture and Design

Location: Ljubljana (SI)
Authors: Peter Gabrijelčič, Boštjan Gabrijelčič, Aleš Gabrijelčič
Investor: Museum of Architecture and Design
Type: Renvoation, Interior, Extension
Project year: 1988 - 2015

MAO1-1320x660.jpg
MAO2-1320x660.jpg
Energetska-prenova-Grad-Fuzine-Model-1013x660.jpg
MAO4-466x660.jpg
 
Hours

Powered by Squarespace

O nas
About